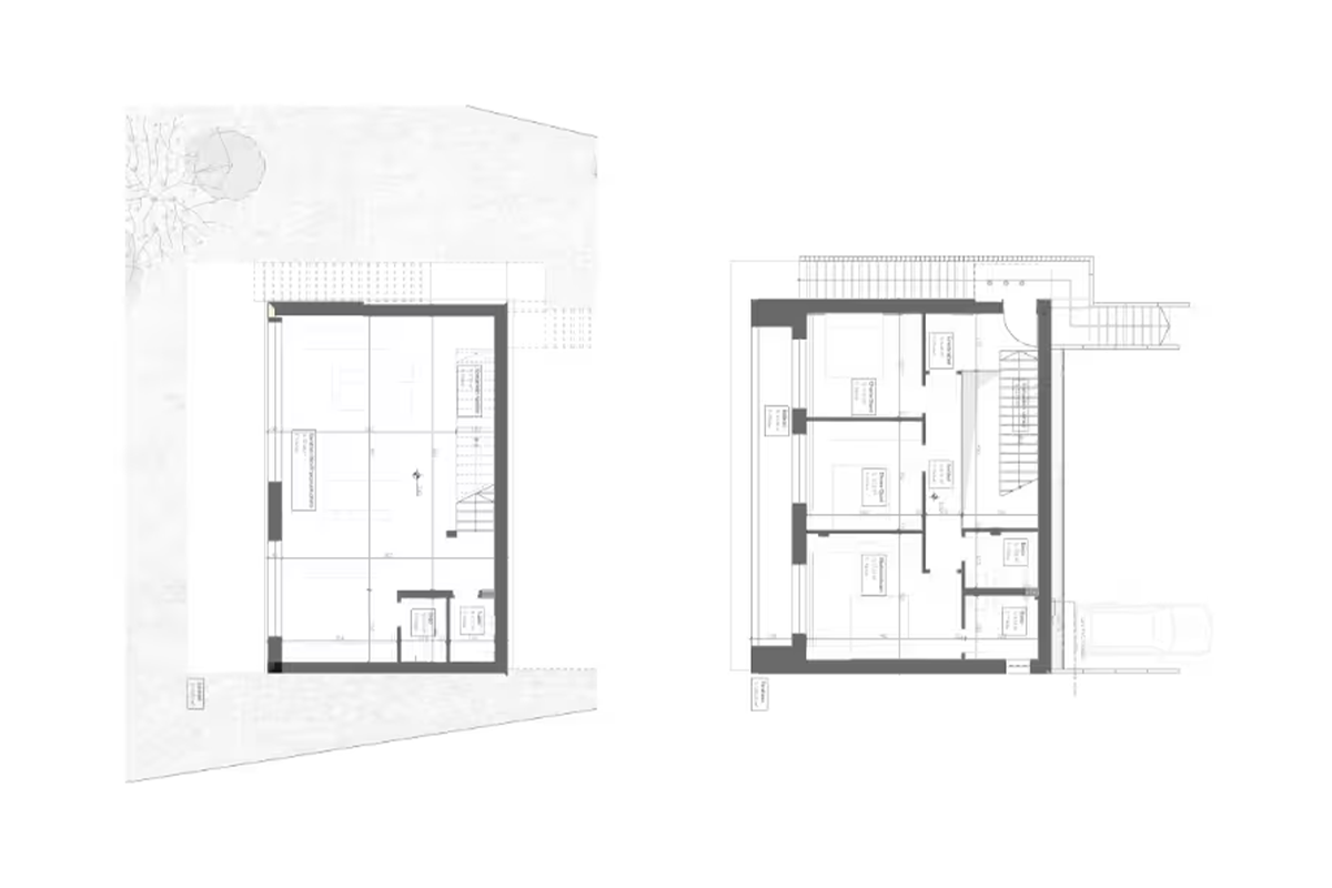
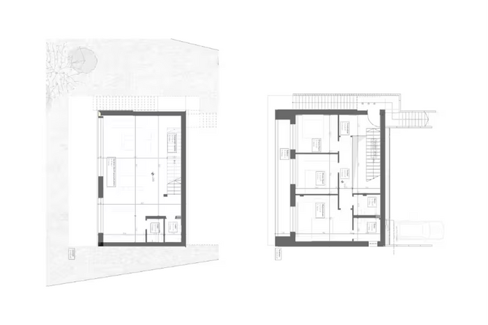
Ofrohet për shitje shtëpia me sipërfaqe 180m², Tipi Montela B, me lokacion në Lagjen Aura Residence, Gërmi.
Shtëpia ka orientim nga lindja dhe perëndimi, është e strukturuar në përdhes dhe një kat me këtë renditje të hapësirave të brendshme; qëndrim ditor, kuzhinë, tri dhoma të gjumit, tri banjo, një depo dhe tarracë.
Sistemin e ngrohjes e ka të mundësuar me pompë termike.
Shtëpia ka truall me sipërfaqe 4.5 Ari, ka oborr të gjelbëruar, hapësirë për vendparkim dhe ofron pishinë opsionale me çmim shtesëprej 30,000€.
Shtëpitë kanë lartësi deri në 3m, ofrojnë siguri, privatësi dhe ambient të qetë.
Kompleksi ofron pesë lloje shtëpish luksoze, të dizajnuara për elegancë dhe komoditet, si dhe elemente të një lagjeje moderne: çerdhe, hapësira të gjelbra dhe zona komunitare që nxisin ndërveprimin dhe jetesën e shëndetshme.
*Kompleksi Aura Residence përbëhet nga 58 shtëpi moderne, aktualisht gjendet në fazën e parë të zhvillimit dhe pritet të përfundojë ndërtimet gjatë dy deri tri viteve të ardhshme.

Duke mbushur formën e mëposhtme agjenti ynë do të ju informojë rreth pyetjeve tuaja!